제주의 마을공간 조사 보고서_온평리
제주의 동쪽 마을, 온평리
온평리는 제주 동쪽바다 곁에 있는 해안마을로 부지가 낮고 평탄하며 일조량이 많은 양명한 마을로 주민들은 주로 어업에 종사하며 동시에 밭을 일구고 과수원을 가꾸기도 한다. 개별 가옥들은 안거리, 밖거리, 창고의 구성을 기본으로 하고 있으며 밖거리를 개조하여 임대를 주거나, 창고를 차고로 사용하는 경우도 있다. 온평리에서는 앞서 말한 제주의 다양한 집들을 볼 수 있다. 마을을 이루는 집들은 시대상, 사회상과 같은 보편성과 더불어 각 개인의 삶이 담겨 특별함도 가지고 있기에 더욱 살아있는 느낌이다.
<온평리 서동 점방>
서동의 중심 길에 있는 가옥으로 골목에 면한 한 칸을 점방으로 쓰던 곳이다. 점방 앞 골목길에 폭낭이 있어, 이곳이 골목의 거점 공간으로 활발히 사용되었으리라 짐작 할 수 있다. 안거리는 남향으로 제주의 전통가옥 형식을 따르며, 세 칸으로 된 집 양옆에 굴묵이 덧붙여진 형태로 전통 목가구 방식으로 조성되어 있다. 구조와 더불어 마루판도 잘 보존되어 있는데, 일부 뜯겨진 부분에는 주춧돌이 드러나 있다. 집은 상방과 큰 구들, 작은 구들, 점방, 퇴, 굴묵으로 구성되어 있고, 추후 퇴칸에 미닫이 문을 달아 현관과 실내 복도로 사용한 것으로 보인다. 현대에 와서 많이 사라져 보기 힘든 굴묵과 살레, 장방 등 제주 전통가옥에서 볼 수 있는 요소들도 잘 남아있어 흥미롭다. 외관도 제주석으로 사면을 마감하여 깊이감이 느껴지며, 점방 부분은 기능에 따라 바닥까지 내려오는 두 짝의 목재 미닫이 문을 설치하여 흔치 않은 입면을 하고 있다. 밖거리는 북향으로 시멘트 블록을 쌓아 올려 목조 지붕을 얹힌 형태이다. 점방이 생기면서 부엌의 기능을 창고와 함께 밖거리에 조성하고, 훗날 욕실까지 실내화하여 설치한 듯 보인다. 정지가 항상 안채와 연결되어야 한다는 고정관념을 버리고 상황에 맞춰 유연하게 변화하고 있음을 이 집을 통해 알 수 있다. 가옥은 집 앞의 폭낭과 더불어 제주석으로 축조된 점방의 특이한 입면이 어우러져 서동의 생활 문화 경관을 풍요롭게 하는데 일조하고 있다.
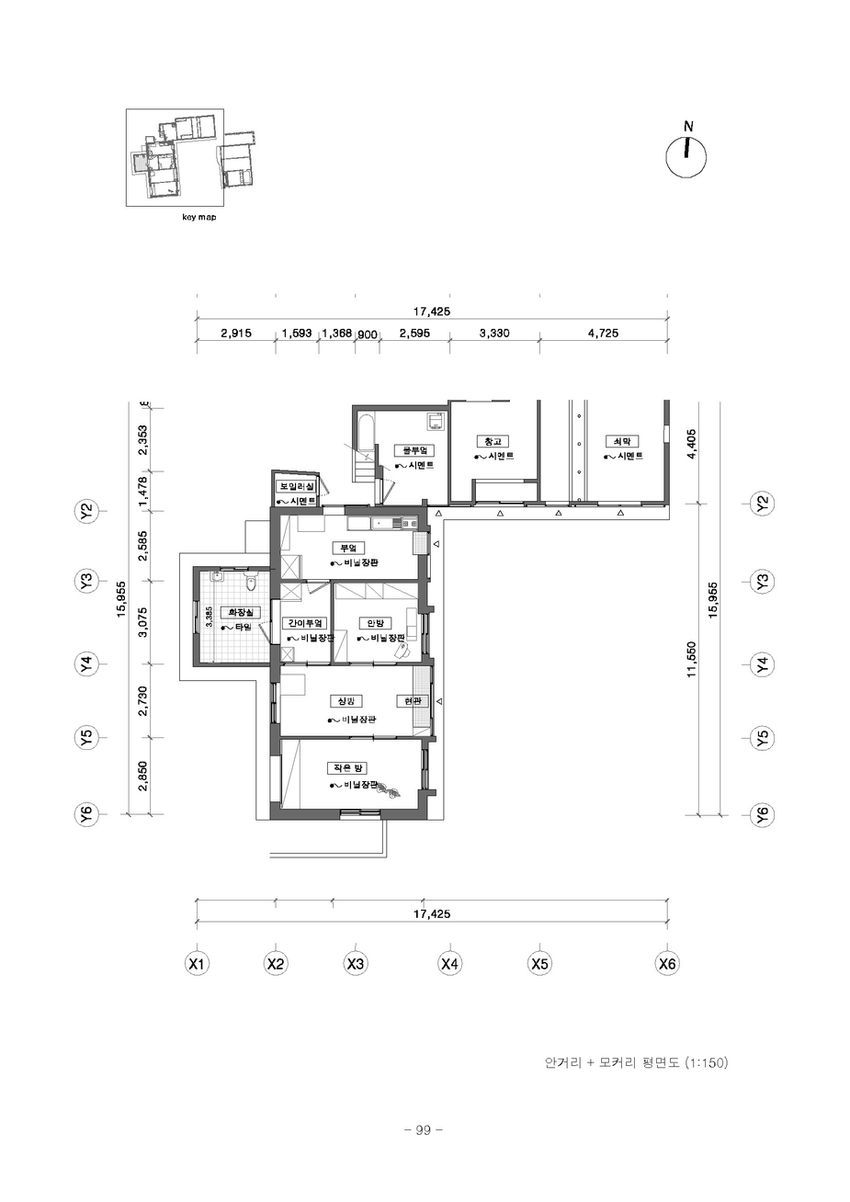
<온평리 해녀 할머니집>
서동의 중심길에 면한 집으로 안거리, 밖거리, 모커리 형식의 가옥이다. 밖거리와 모커리 사이에는 전통적인 통시도 남아있다. 중심길에서 비교적 짧은 올래를 통해 집으로 들어가는 구조이며 대문 옆, 돌담 안쪽으로 오래된 나무가 고즈넉하게 자리하고 있고, 한 켠에는 우영밭(텃밭)이 남아있는 등 제주 전통 가옥의 전형적인 배치를 따르고 있다. 안거리는 동향으로, 밖거리는 서향으로 배치가 되어 있다. 현재 주거로 사용하고 있는 안거리는 네 칸으로 된 제주 전통 가옥의 원형을 기반으로, 지어진 시대(1982)의 흐름과 기능에 따라 변화된 평면을 가지고 있다. 퇴칸에 네 짝의 미닫이 문을 설치하여 실내화 된 현관을 두었고, 현관 뒤로 길쭉한 모양의 상방이 배치되어있는 점, 상방의 한쪽 옆에 두 칸의 긴 방이 있고, 맞은 편에는 안방과 부엌으로 통하는 간이 부엌이 놓여있는 점등이 그러하다. 첫 번째 대수선 때 벽체와 지붕을 들어 올려 높이를 확보하였고, 두 번 째 공사시에는 부엌에는 마당으로 드나들 수 있는 여닫이문을 설치하여 사용의 편의를 높였고, 화장실은 연로한 건축주가 사용하기 편하도록 세탁실과 증축한 것으로 보인다. 쇠막과 창고로 쓰던 모커리에는 계단으로 오르는 장독대 모양의 물부엌이 덧달아져 있고, 밖거리는 자녀들이 사용 할 수 있게 또 하나의 살림채로 구성하여 방과 정지, 창고로 이루어져 있으며, 안거리보다 변형이 적어 옛 모습이 많이 남아있는 편이다.
<온평리 사라진 집>
중동에서 온평포구로 나가는 길에 위치한 가옥으로 동백나무로 둘러싸인 깊은 올래를 가지고 있는 돌집이다. 안거리, 밖거리와 쇠막 두 채, 총 네 채로 구성된 집으로, 안거리는 동향, 밖거리는 남향으로 배치되어 있다. 첫 조사시 동백나무가 우거져 있었으나 점차 수목이 베어지고 철거가 진행되었다. 다행히 완전히 철거되기 전에 실측을 마무리 할 수 있어 온평리에 있는 돌집의 구조를 조금이나마 기록 할 수 있었다. 집은 4칸의 제주 전통 가옥의 구성을 따르며, 추후 필요에 따라 기능실을 덧붙인 안거리와 방, 부엌, 욕실로 구성된 또 하나의 살림채인 밖거리, 그리고 두 채의 쇠막으로 구성된다. 안거리는 전통 가옥의 특성을 가지면서도 지어진 시대에 맞게 변화된 평면으로, 실내화 된 현관과 상방, 두 칸의 긴 방과 한 칸의 방과 부엌으로 이루어져 있다. 불편한 실외 화장실을 대체하여 추후에 화장실, 욕실과 창고를 증축한 것으로 보인다. 밖거리 또한 세 칸의 전통 돌집을 화장실, 욕실과 부엌, 방으로 재구성하여 또 다른 독립적 생활이 가능하도록 하였다. 이 집의 특징은 두 채의 쇠막으로, 소를 묶어두는 나무 기둥과 미장으로 만든 여물통을 두어 체계적으로 일정규모의 소를 키웠음을 알 수 있게 한다.
위치 : 서귀포시 성산읍 온평리
조사 및 연구 : 에이루트 건축사사무소 (이창규, 강정윤)
성희연, 홍혜리
보고서 : 에이루트 건축사사무소 (이창규, 강정윤, 양다은)
기간 : 2017~2019

























